Proiectare
Putem asigura proiectarea structurilor metalice, fiind întotdeauna asistați de cei mai buni profesioniști. Proiectele halelor sunt realizate prin eficientizarea elementelor structurale rezultatul fiind tocmai economia consumului de profile și table.
Realizarea îmbinărilor sudate în atelierul de confecții metalice este superioară calitativ dar și economic comparativ cu cele realizate în șantier. Astfel, structurile proiectate de noi sunt realizate din subansamble sudate în atelier, transportabile rutier, ce se vor monta apoi prin îmbinări cu șuruburi. Dimensionarea se face în conformitate cu standardele românești și europene.
Detaliere
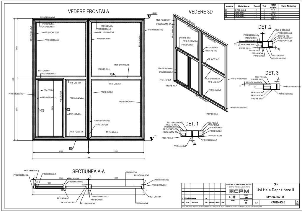
În cazul în care clientul are deja un proiect dimensionat și calculat, putem asigura detalierea structurii în vederea fabricației, generând:
- detaliile de fabricație
- planuri de montaj
- liste de materiale
- desene de fabricație pentru fiecare reper
- liste cu organe de asamblare
